藤岡市東平井 中古299

299万円

群馬県藤岡市東平井

八高線「群馬藤岡」駅徒歩59分

上信電鉄「馬庭」駅徒歩85分

価格
299万円
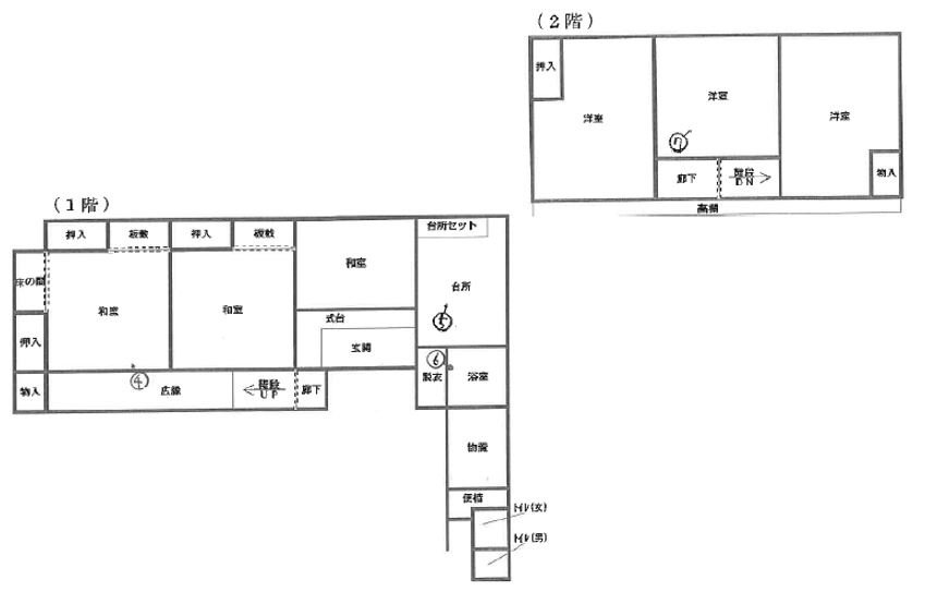
間取り/建物面積
6DK/140.60㎡
所在地
群馬県藤岡市東平井
築年
1954年1月(築72年)
駐車
交通

八高線群馬藤岡」駅 徒歩59分

上信電鉄馬庭」駅 徒歩85分

藤岡市東平井 中古299の基本情報

物件名
藤岡市東平井 中古299
価格
299万円
建物面積
140.60㎡
土地面積
121.09坪(400.30㎡)
築年月
1954年1月(築72年)
総戸数
1戸
所在地
群馬県藤岡市東平井
交通

八高線群馬藤岡」駅 徒歩59分

上信電鉄馬庭」駅 徒歩85分

藤岡市東平井 中古299の詳細情報

設備条件
設備(その他)
    -
駐車場/月額
有/-
土地権利
所有権
国土法届出
不要
用途地域
無指定
取引態様
仲介
引渡し
即時

藤岡市東平井 中古299で募集中の物件

  1. 42.53坪 (140.60㎡)

    299万円(7.03万円/坪)

周辺施設

  • セブンイレブン 藤岡鮎川店の画像

    コンビニエンスストア

    セブンイレブン 藤岡鮎川店

    697m(9分)

  • ローソン西平井店の画像

    コンビニエンスストア

    ローソン西平井店

    1470m(19分)

  • 藤岡市立西中学校の画像

    中学校

    藤岡市立西中学校

    1480m(19分)

  • 藤岡市立平井小学校の画像

    小学校

    藤岡市立平井小学校

    1964m(25分)

  • 業務スーパーの画像

    スーパー

    業務スーパー

    3154m(40分)

  • コープぐんまの画像

    スーパー

    コープぐんま

    3385m(43分)

  • 「群馬藤岡」駅の画像

    「群馬藤岡」駅

    4998m(63分)

近隣の物件

  1. 藤岡市藤岡

    4LDK (112.61㎡)

    1,780万円

  2. 藤岡市藤岡

    3SLDK (77.83㎡)

    1,580万円

  3. 藤岡市浄法寺

    4SLDK (121.72㎡)

    999万円

  4. 藤岡市上戸塚

    3LDK (89.42㎡)

    2,190万円

よく見られている物件

  1. 藤岡市藤岡

    5K (67.06㎡)

    250万円

  2. 藤岡市藤岡

    4DK (69.56㎡)

    50万円

  3. 藤岡市藤岡

    4DK (72.32㎡)

    250万円

  4. 藤岡市藤岡

    3SLDK (77.83㎡)

    1,580万円

藤岡市東平井 中古299

お気軽にお問い合わせください

無料お問い合わせ

ベストハウス株式会社

0120-900-346

AM9:30~PM19:30

(休:水曜日)