神川町大字関口 中古3500

3,500万円

埼玉県児玉郡神川町大字関口

八高線「丹荘」駅徒歩4分

価格
3,500万円
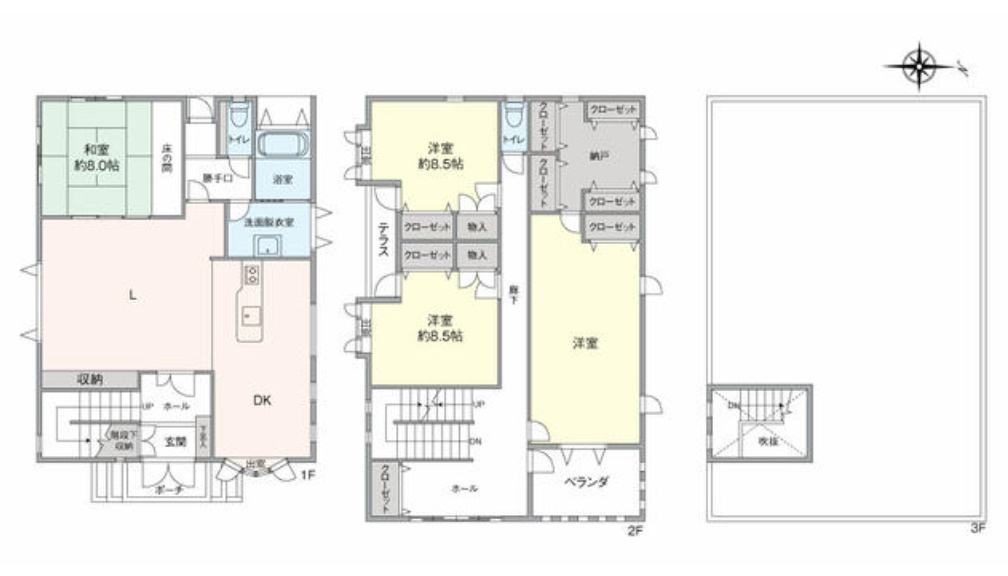
間取り
4SLDK
土地面積
460.33㎡
所在地
埼玉県児玉郡神川町大字関口
交通

八高線丹荘」駅 徒歩4分

建物面積
202.33㎡
築年月
2009年9月(築16年)

セールスポイント

■建物他に 平成5年3月築 6DK 174.47㎡有

ぜひ一度見ていただきたい、「神川町大字関口 中古3500」です。
フジマート神川店まで450mです。
斜面の多い場所よりも、坂の少ない平坦地での生活はいかがですか。
オール電化住宅なら冬でも暖かく過ごすことができます。
児玉郡神川町の八高線丹荘周辺には、マイホームに相応しい一戸建て情報が豊富です。

ポイント

駐車5台以上 オール電化 前道6m以上 和室 角地

担当者のコメント

稲葉 圭生介

こだわりポイント満載の神川町大字関口 中古3500。便利なスーパー「フジマート神川店」まで450mです。冬でも暖かく過ごせるオール電化住宅で暮らしませんか。設備や周辺環境が整っている中古戸建てはいかがでしょうか。一戸建てについてのお問合せ、又は内覧をご希望の際はベストハウスまでご連絡下さい。お問い合わせは0120-900-346までよろしくお願いします。

基本情報

販売戸数
-
総戸数
-
間取り / 詳細
4SLDK
向き
-
建物面積(坪数)
202.33㎡(61.2坪)
土地面積(坪数)
460.33㎡(139.24坪)
建ぺい率 /
容積率
60%/200%
築年月
2009年9月(築16年)
駐車場 / 月額
有 / -
土地権利
所有権
土地
(敷金 / 保証金)
- / -
建物構造
木造 / 3階建
傾斜地部分面積
-
路地状敷地
-
私道負担面積
-
セットバック
高圧線下面積
-
施工会社
-
用途地域
-
地目 / 地勢
宅地 / 平坦
接道状況
角地(南 公道 11.9m)(東 公道 7.3m)
国土法届出要否
不要
都市計画
非線引区域
総区画数 /
販売区画数
-/-
現況
空家
その他
法令上の制限
-
取引態様
一般媒介
引渡し
即時
取引条件の
有効期限
2026年03月19日

設備条件

設備条件
  • プロパンガス / 公営水道 / 公共下水 / オール電化
設備(その他)
    -

その他

物件番号
99328612
管理コード
-
建築確認番号
-
情報更新日
2026年03月16日
次回更新予定日
2026年03月19日
取扱会社
  • ベストハウス株式会社
  • 群馬県藤岡市藤岡843-1 
  • TEL:0120-900-346
  • 群馬県知事 (2) 第7411号
  • 公益社団法人 全国宅地建物取引業保証協会
    一般社団法人 群馬県宅地建物取引業協会
    公益社団法人 首都圏不動産公正取引業協会
備考
新生活を失敗せず、スタートさせたいならこちらの「神川町大字関口 中古3500」はいかがでしょうか。暮らしに便利なフジマート神川店(スーパー)がこちらから450mのところにあります。ベストハウスがお勧めする児玉郡神川町にある豊富な戸建て情報はいかがでしょうか。興味がある方は、info@besthouse-f.co.jpまでご連絡下さい。

周辺施設

  • 神川町立丹荘小学校の画像

    小学校

    神川町立丹荘小学校

    299m(4分)

  • フジマート神川店の画像

    スーパー

    フジマート神川店

    450m(6分)

  • コメリ神川店の画像

    ホームセンター

    コメリ神川店

    573m(8分)

  • セブンイレブン神川町八日市店の画像

    コンビニエンスストア

    セブンイレブン神川町八日市店

    1167m(15分)

  • ローソン神川元阿保店の画像

    コンビニエンスストア

    ローソン神川元阿保店

    1216m(16分)

  • 神川町立神川中学校の画像

    中学校

    神川町立神川中学校

    1480m(19分)

支払いシミュレーション

月々の支払額
購入希望物件価格
万円
頭金
万円
金利
%
返済額(ボーナス1回分)
万円
返済期間

※ボーナスは自動で年2回分で計算されます。

近隣の物件

  1. 神川町大字新里 中古1200オーナーチェンジ(売賃貸住宅)

    児玉郡神川町大字新里

    4LDK (113.85㎡)

    1,200万円

  2. 神川町大字渡瀬 中古1399

    児玉郡神川町大字渡瀬

    4DK (74.52㎡)

    1,399万円

  3. 神川町元原 中古1799

    児玉郡神川町大字元原

    3SLDK (97.70㎡)

    1,799万円

  4. 神川町新里 中古1499

    児玉郡神川町大字新里

    2SLDK (83.22㎡)

    1,499万円

よく見られている物件

  1. 藤岡市藤岡 中古250

    藤岡市藤岡

    5K (67.06㎡)

    250万円

  2. 藤岡市立石新田 中古1298

    藤岡市立石新田

    5SDK (128.88㎡)

    1,298万円

  3. 藤岡市藤岡 中古1580

    藤岡市藤岡

    3SLDK (77.83㎡)

    1,580万円

  4. 藤岡市藤岡 中古300

    藤岡市藤岡

    4DK (72.32㎡)

    300万円

神川町大字関口 中古3500

神川町大字関口 中古3500

3,500万円

-

4SLDK(202.33㎡)

お気軽にお問い合わせください

無料お問い合わせ

ベストハウス株式会社

0120-900-346

AM9:30~PM19:30

(休:水曜日)