神川町大字関口 中古3500

3,500万円

埼玉県児玉郡神川町大字関口

八高線「丹荘」駅徒歩4分

価格
3,500万円
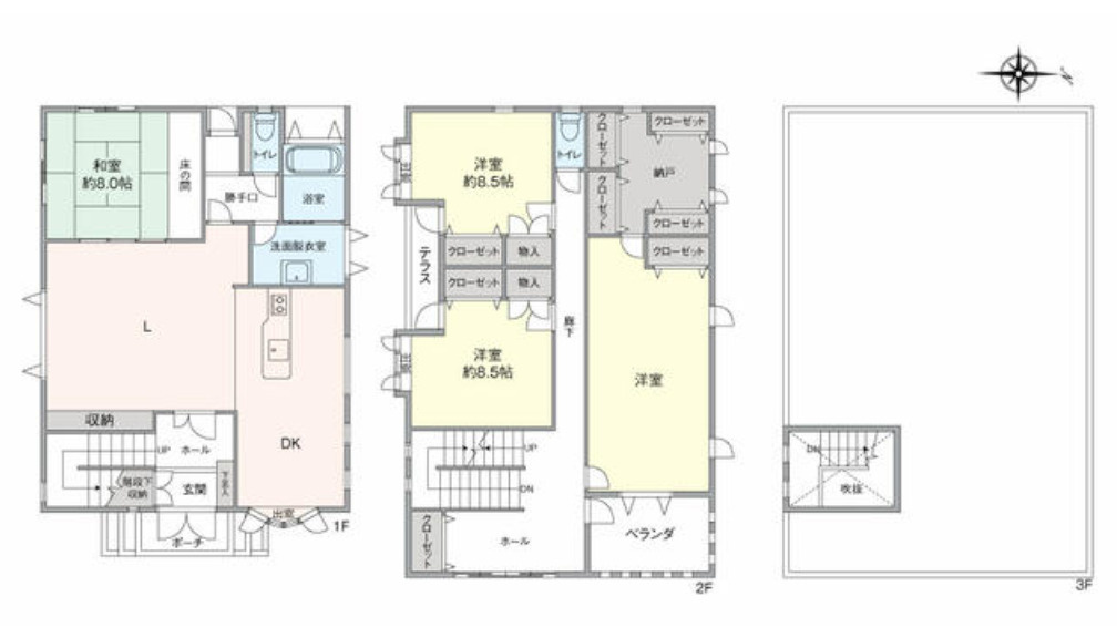
間取り/建物面積
4LDK/202.33㎡
所在地
埼玉県児玉郡神川町大字関口
築年
2009年9月(築16年)
駐車
交通

八高線丹荘」駅 徒歩4分

神川町大字関口 中古3500の基本情報

物件名
神川町大字関口 中古3500
価格
3,500万円
建物面積
202.33㎡
土地面積
139.24坪(460.33㎡)
築年月
2009年9月(築16年)
総戸数
-
所在地
埼玉県児玉郡神川町大字関口
交通

八高線丹荘」駅 徒歩4分

神川町大字関口 中古3500の詳細情報

設備条件
設備(その他)
    -
駐車場/月額
有/-
土地権利
所有権
国土法届出
不要
用途地域
-
取引態様
一般媒介
引渡し
即時

神川町大字関口 中古3500で募集中の物件

  1. 61.20坪 (202.33㎡)

    3,500万円(57.19万円/坪)

周辺施設

  • 神川町立丹荘小学校の画像

    小学校

    神川町立丹荘小学校

    299m(4分)

  • フジマート神川店の画像

    スーパー

    フジマート神川店

    450m(6分)

  • コメリ神川店の画像

    ホームセンター

    コメリ神川店

    573m(8分)

  • セブンイレブン神川町八日市店の画像

    コンビニエンスストア

    セブンイレブン神川町八日市店

    1167m(15分)

  • ローソン神川元阿保店の画像

    コンビニエンスストア

    ローソン神川元阿保店

    1216m(16分)

  • 神川町立神川中学校の画像

    中学校

    神川町立神川中学校

    1480m(19分)

近隣の物件

  1. 児玉郡神川町大字新里

    4LDK (113.85㎡)

    1,200万円

  2. 児玉郡神川町大字渡瀬

    4DK (74.52㎡)

    1,399万円

  3. 児玉郡神川町大字元原

    3SLDK (97.70㎡)

    1,949万円

よく見られている物件

  1. 藤岡市藤岡

    5K (67.06㎡)

    250万円

  2. 藤岡市藤岡

    4DK (69.56㎡)

    50万円

  3. 藤岡市藤岡

    4DK (72.32㎡)

    250万円

  4. 藤岡市藤岡

    3SLDK (77.83㎡)

    1,580万円

神川町大字関口 中古3500

お気軽にお問い合わせください

無料お問い合わせ

ベストハウス株式会社

0120-900-346

AM9:30~PM19:30

(休:水曜日)