藤岡市東平井 中古590

690万円

群馬県藤岡市東平井

八高線「群馬藤岡」駅徒歩59分

上信電鉄「馬庭」駅徒歩85分

価格
690万円
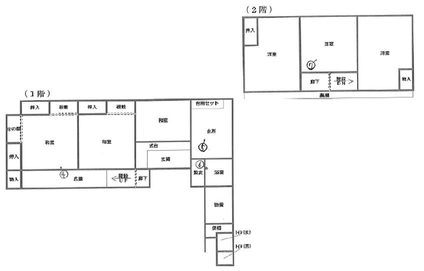
間取り
6DK
土地面積
400.30㎡
所在地
群馬県藤岡市東平井
交通

八高線群馬藤岡」駅 徒歩59分

上信電鉄馬庭」駅 徒歩85分

建物面積
140.60㎡
築年月
1954年1月(築72年)

セールスポイント

角地なので日当たりも良く健康的な生活に適しています。素敵な6DKのファミリー向けの物件です。すぐに入居できるので、お急ぎの方も安心してお問い合わせください。建物面積140.6㎡の物件はいかがですか。八高線群馬藤岡周辺で戸建て選びをするなら、ベストハウスがプロとして適格なアドバイスをご提供致します。0120-900-346までご連絡下さい。

ポイント

角地 即引渡し可 平坦地 土地100坪以上

担当者のコメント

松田 彩

「藤岡市東平井 中古590」:藤岡市エリアの新居にピッタリ。待つのが嫌いな方にはこちらの即引渡し可の物件をお勧めします。中古戸建てながら、室内はとてもきれいです。角地なので日当たりも良く健康的な生活に適しています。一戸建てをお探しなら、藤岡市の八高線群馬藤岡周辺に強い当社までご連絡ください。信頼できるスタッフが住まい探しをサポート致します。

基本情報

販売戸数
-
総戸数
1戸
間取り / 詳細
6DK
向き
-
建物面積(坪数)
140.60㎡(42.53坪)
土地面積(坪数)
400.30㎡(121.09坪)
建ぺい率 /
容積率
70%/200%
築年月
1954年1月(築72年)
駐車場 /
月額料金
有 -
土地権利
所有権
土地
(敷金 / 保証金)
- / -
建物構造
木造 / 2階建
傾斜地部分面積
-
路地状敷地
-
私道負担面積
-
セットバック
高圧線下面積
-
施工会社
-
用途地域
無指定
地目 / 地勢
宅地 / 平坦
接道状況
角地(東 公道)(北 公道)
国土法届出要否
不要
都市計画
市街化調整区域
総区画数 /
販売区画数
1区画/-
現況
空家
その他
法令上の制限
-
取引態様
仲介
引渡し
即時
取引条件の
有効期限
2026年01月22日

設備条件

設備条件
  • プロパンガス / 公営水道 / 汲取排水
設備(その他)
    -

その他

物件番号
91749193
管理コード
-
建築確認番号
-
情報更新日
2026年01月08日
次回更新予定日
2026年01月22日
取扱会社
  • ベストハウス株式会社
  • 群馬県藤岡市藤岡843-1 
  • TEL:0120-900-346
  • 群馬県知事 (2) 第7411号
  • 公益社団法人 全国宅地建物取引業保証協会
    一般社団法人 群馬県宅地建物取引業協会
    公益社団法人 首都圏不動産公正取引業協会
備考
こだわりポイント満載の藤岡市東平井 中古590。納得の価格帯である、購入価格690万円の物件は経済的です。ファミリーに好評。経済的にもうれしい中古の戸建て物件です。角地に立つ物件は、洗濯物を干す時にも便利な物件となっています。ベストハウスがお勧めする、藤岡市の売買一戸建てをご覧ください。0120-900-346から、いつでもご質問等を受け付けております。

周辺施設

  • セブンイレブン 藤岡鮎川店の画像

    コンビニエンスストア

    セブンイレブン 藤岡鮎川店

    697m(9分)

  • ローソン西平井店の画像

    コンビニエンスストア

    ローソン西平井店

    1470m(19分)

  • 藤岡市立西中学校の画像

    中学校

    藤岡市立西中学校

    1480m(19分)

  • 藤岡市立平井小学校の画像

    小学校

    藤岡市立平井小学校

    1964m(25分)

  • 業務スーパーの画像

    スーパー

    業務スーパー

    3154m(40分)

  • コープぐんまの画像

    スーパー

    コープぐんま

    3385m(43分)

  • 「群馬藤岡」駅の画像

    「群馬藤岡」駅

    4998m(63分)

支払いシミュレーション

月々の支払額
9.6
購入希望物件価格
万円
頭金
万円
金利
%
返済額(ボーナス1回分)
万円
返済期間

※ボーナスは自動で年2回分で計算されます。

近隣の物件

  1. 藤岡市上落合 中古1099

    藤岡市上落合

    5K (144.03㎡)

    1,099万円

  2. 藤岡市上戸塚(全1棟)1号棟

    藤岡市上戸塚

    3LDK (89.42㎡)

    2,190万円

  3. 藤岡市立石新田 中古1298

    藤岡市立石新田

    5SDK (128.88㎡)

    1,298万円

  4. 藤岡市西平井 中古1850

    藤岡市西平井

    3LDK (120.62㎡)

    1,850万円

藤岡市東平井 中古590

藤岡市東平井 中古590

690万円

-

6DK(140.60㎡)

お気軽にお問い合わせください

無料お問い合わせ

ベストハウス株式会社

0120-900-346

AM9:30~PM19:30

(休:水曜日)